Vincitori Opere realizzate 2015

Medaglia d'Oro

Onomichi U2 (Onomichi, Hiroshima, Giappone)
Suppose Design Office Co., Ltd. – Makoto Tanijiri, Ai Yoshida (Giappone)

Tavole

Medaglia d'Argento

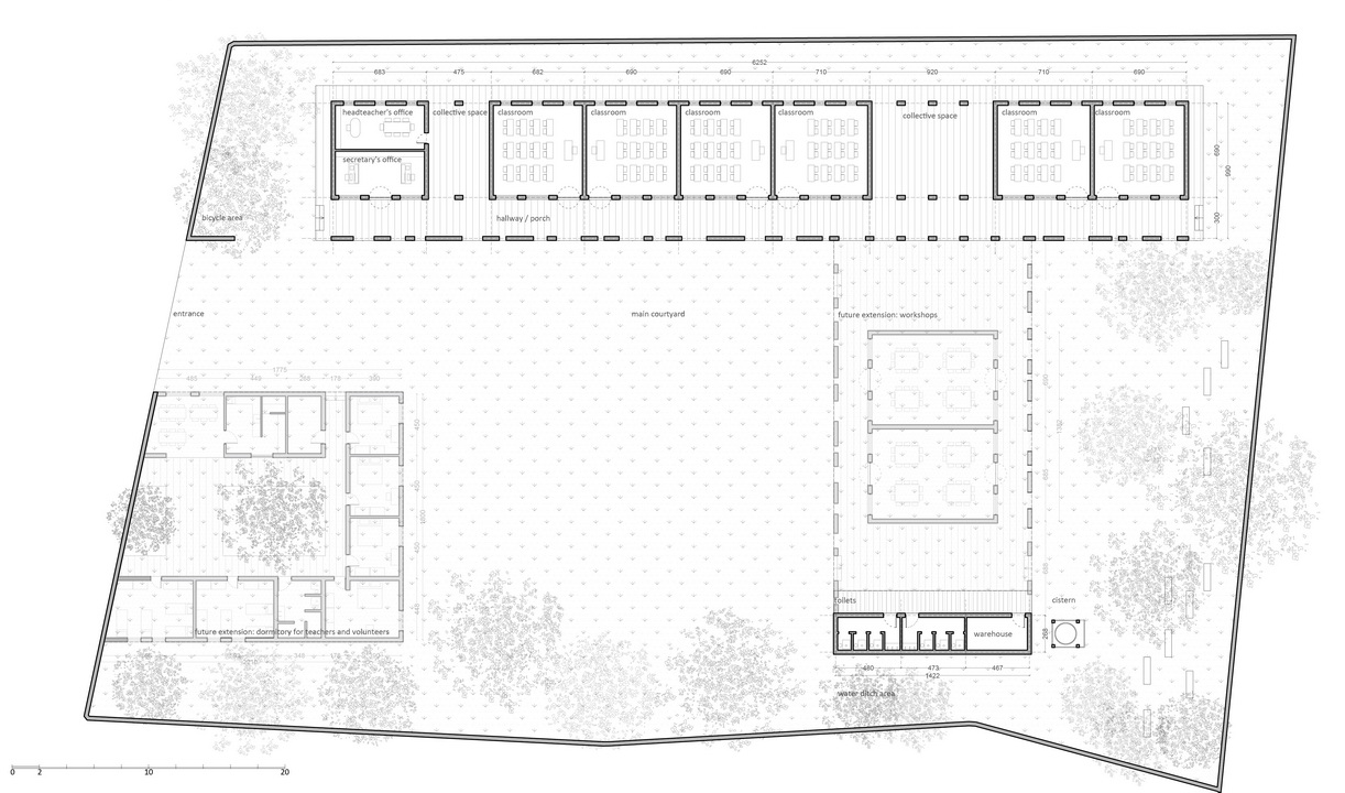
Scuola secondaria nel villaggio di Roong, Cambogia (Roong Village, Takeo Province, Cambogia)
ASF - Architetti Senza Frontiere Italia ONLUS (Camillo Magni, Elisabetta Fusar Poli, Paolo Garretti, Filippo Mascaretti, Marta Minetti, Marco Tommaseo)

Tavole

Medaglia d'Argento

CASA DCS - Riuso e ristrutturazione di un edificio in Sicilia (Ragusa, Sicilia)
Giuseppe Gurrieri, Valentina Giampiccolo (Italia)

Tavole

Menzione d'Onore

Skills Centre Malaa - una scuola di formazione professionale nei pressi di Nairobi, Kenya (Nairobi, Kenya)
Susanne Gampfer, Stefan Kroetsch + students from Technische Universität München - University of Applied Sciences Augsburg (Germania)
 

Menzione d'Onore

Termas Geométricas (Coñaripe, Villarrica National, Cile)
Germán del Sol (Cile)
 

Menzione d'Onore

Fondazione Elisabeth e Helmut Uhl (Laives, Bolzano, Trentino – Alto Adige/ Südtirol)
Modostudio – Fabio Cibinel, Roberto Laurenti, Giorgio Martocchia (Italia)

Tavole

Menzione d'Onore

Centro di educazione ambientale dei monti Krkonoše (KCEV) (Vrchlabi, Repubblica Ceca)
Petr Hájek (Repubblica Ceca)

Tavole

Menzione d'Onore

Centro pediatrico a Port Sudan (Port Sudan, Sudan)
Tamassociati – Massimo Lepore, Raul Pantaleo, Simone Sfriso with Laura Candelpergher, Enrico Vianello (Italia)

Tavole

Menzione d'Onore

Rifugio II (Belgio)
Wim Goes Architectuur (Belgio)

Tavole

Progetti selezionati

Khmeresque
ARCHIUM,South Korea

Sports Center Sargans
Blue Architects+ Ruprecht Architekten, Switzerland

Hydro Sciences Laboratory Neubiberg
Brune architecture, Germany

Pierced box, Cerrillo de Maracena
Elisa Valero architects, Spain

Energy Bunker
HHS Planer + Architekten, Germany

MAST - Arts, Experience et Technology
Labics, Italy

Upcycle House
Lendager architects, Denmark

India House - Scholar’s residence
Lipsky-Rollet Architectes, France

A2M Social Housing
Nunzio Gabriele Sciveres architect, Italy

House G
Pool architekten, Switzerland

EPFL Quartier Nord, École polytechnique fédérale de Lausanne
Richter Dal Rocha & Associés architectes, Switzerland

Socail Housing in Sa Pobla
RipollTizon, Spain

Healthcare-Centre Mondikolok
Studio Gelatat, Austria

Social housing in Vallecas
Vazquez Consuegra architects, Spain