Vincitori Opere realizzate 2017
Medaglia d'Oro
JIGIYA SO centro di riabilitazione psicomotoria
Progettisti: Caravatti_Caravatti architetti
Committente: Francesco Pianzola Foundation
Localizzazione: Kati (Repubblica del Mali)
Realizzazione: 2015
Medaglia d’Argento
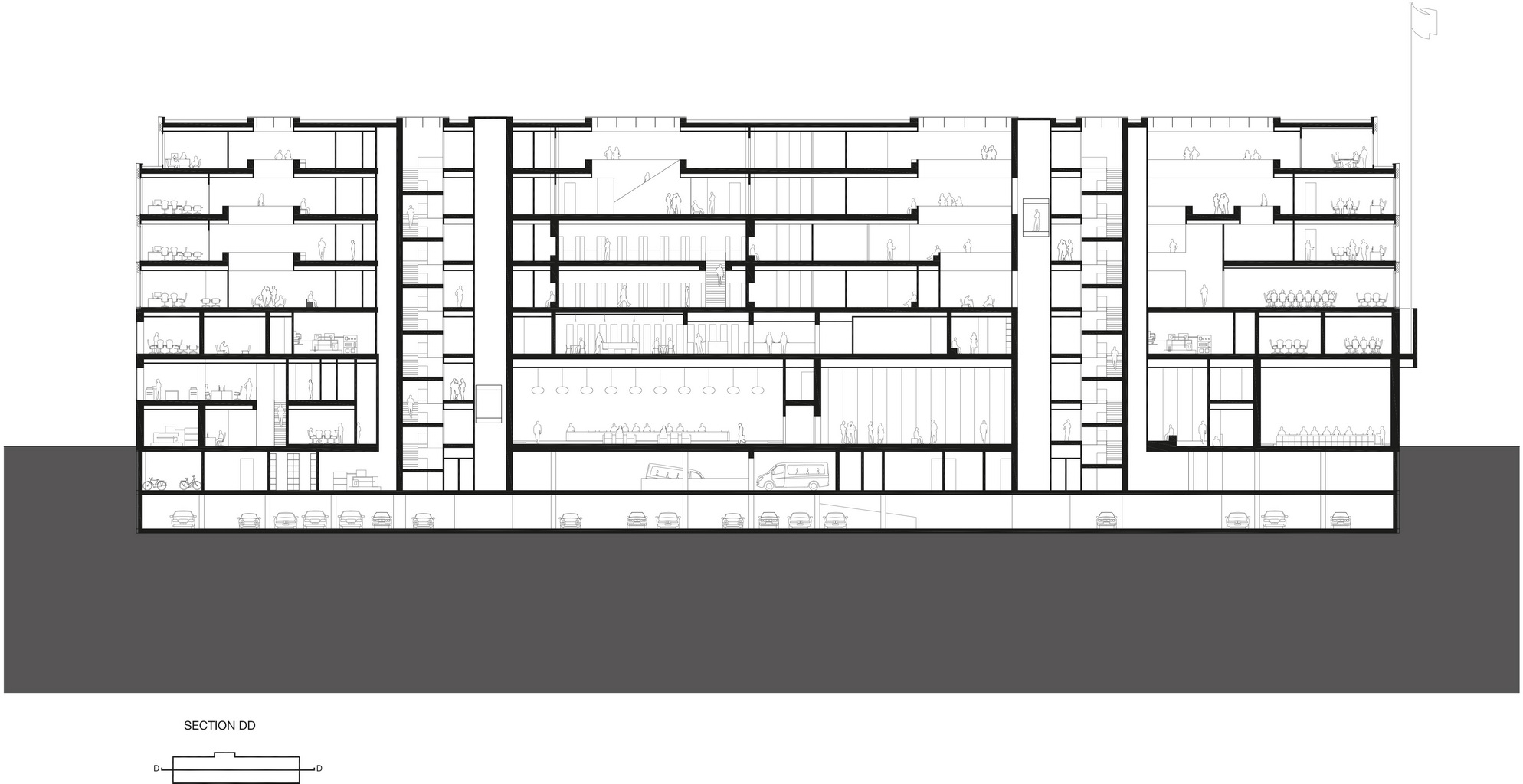
Edificio per la nuova sede Norvento
Progettista: Francisco Mangado
Committente: Norvento Enerxia S.L.
Localizzazione: Lugo (Spagna)
Realizzazione: 2016
Medaglia d’Argento
Corte Suprema dei Paesi Bassi
Progettisti: KAAN Architecten (Kees Kaan, Vincent Panhuysen, Dikkie Scipio)
Committente: Rijksvastgoedbedrijf
Localizzazione: L’Aia (Paesi Bassi)
Realizzazione: 2016
Medaglia d’Argento
Rivitalizzazione del fiume Aire, Ginevra, Svizzera
Progettisti: Superpositions [Georges Descombes Architect, Atelier Descombes & Rampini Architects, B+C Ingénieurs Hydraulic engineering, Biotec Applied biology, ZS Ingénieurs civils Structure engineering]
Committente: State of Geneva
Localizzazione: Ginevra (Svizzera)
Realizzazione: 2016
Menzione d’Onore
Podernuovo a Palazzone cantina Bulgari
Progettisti: Alvisi Kirimoto + Partners Srl
Committente: Podernuovo a Palazzone di Paolo e Giovanni Bulgari
Localizzazione: San Casciano dei Bagni - Siena (Italia)
Realizzazione: 2013
Menzione d’Onore
Casa di cura Erika Horn
Progettisti: Dietger Wissounig Architekten
Committente: Gemeinnützige Wohn- u. Siedlungsgenossenschaft Ennstal reg. Gen.m.b.H
Localizzazione: Andritz, Graz (Austria)
Realizzazione: 2015
Menzione d’Onore
Parco Buitenschot
Progettisti: H+N+S landscape architects and Paul de Kort visual artist
Committente: Amsterdam Airport Schiphol, Mainport en Groen
Localizzazione: Hoofddorp, Amsterdam (Paesi Bassi)
Realizzazione: 2013
Menzione d’Onore
Polak Building
Progettista: Paul de Ruiter
Committente: Erasmus University Rotterdam
Localizzazione: Woudestein Campus, Rotterdam (Paesi Bassi)
Realizzazione: 2015
Menzione d’Onore
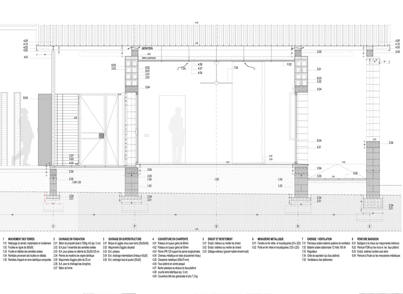
“La rosa di Versciaco”, caserma dei pompieri di Versciaco
Progettisti: Pedevilla Architects
Committente: Comune di San Candido
Localizzazione: Versciaco (Italia)
Realizzazione: 2016
Menzione d’Onore
Sydney Park Water Re-Use Project
Progettisti: Turf Design Studio and Environmental Partnership (TDEP)
Committente: City of Sydney
Localizzazione: Sydney (Australia)
Realizzazione: 2015
Menzione d’Onore
Hakusui Nursery School
Progettista: Yamazaki Kentaro Design Workshop
Committente: Seiyu-Kai
Localizzazione: Sakura, Chiba (Giappone)
Realizzazione: 2014
Progetti selezionati
Caramoniña allotments
Progettisti: Abalo Alonso arquitectos
Committente: Municipality of Santiago
Localizzazione: Santiago de Compostela (Spagna)
Realizzazione: 2015
Centro culturale “le Creste”
Progettisti: Area Progetti, UNA2 architetti associati, Arch. A. Michelini, Arch. L. Ceccarelli, Golder associates
Committente: Comune di Rosignano Marittimo, Livorno
Localizzazione: Rosignano marittimo, Livorno (Italia)
Realizzazione: 2014
Sei case a schiera nel fienile
Progettisti: Gino Guarnieri e Roberto Mascazzini
Committente: Immobiliare Bandello srl
Localizzazione: Sesto San Giovanni, Milano (Italia)
Realizzazione: 2015
Kinderkreisel
Progettisti: Kraus Schönberg Architects
Committente: Frauke Stein - KITA Kinderkreisel e.V. Ohlstedt
Localizzazione: Amburgo (Germania)
Realizzazione: 2015
eARThouse
Progettisti: LOAD, LOcal Actions for Development (Lorenzo Conti, Sara Bettoli, Mattia Lucchetti)
Committente: Nka Foundation
Localizzazione: Abetenim, Ashanti region (Gana)
Realizzazione: 2016
Louvre Lens museum park
Progettisti: Mosbach paysagistes e SANAA (Sejima Kazuyo + Ryue Nishizawa)
Committente: Nord Pas de Calais Region
Localizzazione: Lens (Francia)
Realizzazione: 2014
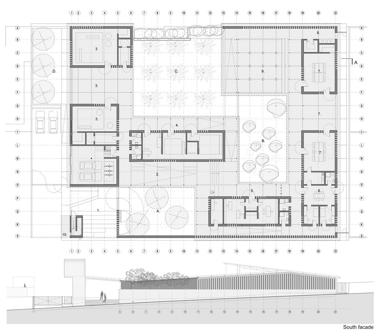
The Great Wall of WA - 230 Metres of Rammed Earth Wall
Progettisti: Luigi Rosselli Architects
Committente: Privato
Localizzazione: North Western Australia
Realizzazione: 2014
In sintonia col fiume – Progettare l’isola di Baxi per assecondare le alluvioni
Progettisti: SWA Group - Xiao Zheng and Sean O’Malley
Committente: Changsha Xiandao Land Development and Construction Co., LTD.
Localizzazione: Changsha, Hunan Province (Cina)
Realizzazione: 2014
Community centre refugee Camp Spinelli
Progettisti: Atelier U20, Krötsch | Graf | Kretzer – Faculty of Architecture | TU Kaiserslautern
Committente: Building Competence Centre, City of Mannheim
Localizzazione: Mannheim (Germania)
Realizzazione: 2016
PREMIO SPECIALE FASSA BORTOLO
Vincitore
Podernuovo a Palazzone cantina Bulgari
Progettisti: Alvisi Kirimoto + Partners Srl
Committente: Podernuovo a Palazzone di Paolo e Giovanni Bulgari
Localizzazione: San Casciano dei Bagni - Siena (Italia)
Realizzazione: 2013
Progetti selezionati
e4
Progettisti: Ecospazi - Arch. Carlo Di Pillo, Arch. Denise Tegon
Committente: Privato
Localizzazione: San Martino Buon Albergo, Verona (Italia)
Realizzazione: 2014
VGramsci building
Progettista: Giovanni Vaccarini
Committente: Di Ferdinando Michele Costruzioni Generali srl
Localizzazione: Giulianova, Teramo (Italia)
Realizzazione: 2015
Break Point 2.0
Progettisti: OQ Project / Andrea Bellodi architetto
Committente: Break Point SNC
Localizzazione: Bondeno, Ferrara (Italia)
Realizzazione: 2015
Paramount - Alma Residence
Progettisti: PLASMA Studio (Eva Castro, Holger Kehne, Ulla Hell)
Committente: Famiglia Rainer
Localizzazione: Sesto, Bolzano (Italia)
Realizzazione: 2012


